Ard Arealplan har levert reguleringsplanar og planutgreiingar for eit breitt spekter av prosjekt – frå bustadfelt og næringsområde til offentlege infrastrukturtiltak. Me arbeider tett med utbyggjarar, kommunar og grunneigarar for å utvikle gjennomførbare og berekraftige løysingar.
Sjå eit utval av våre tidlegare prosjekt her.

Vedtatt plan Reguleringsplan for Kjevikdalen fyllplass vart vedtatt i kommunestyret i Lindås 24. september 2015. Planen legg til rette for utviding av NGIR sitt avfallsanlegg, areal for nytt reinseanlegg, og endring at bygningsstrukturar og eventuell utviding av administrasjonsbygget. Det er òg lagt inn ein 10 meter brei vegetasjonsskjerm langs deponiområdet. Kommunen si saksutgreiing seier mellom anna at: Utvidinga…

Høgestølen gnr. 35, bnr. 34 m.fl. – Straume (planID: 20130018) vart godkjent i Fjell kommunestyre 3. august 2015. Ard arealplan har utarbeidd reguleringsplanen for Helga og Torleif Straume. Planen legg til rette for oppføring av ei variert bustadsamansetning med totalt 51 nye bustadeiningar. Planen legg elles til rette for leikeplassar, uteopphaldsareal og infrastruktur. Rådmannen skreiv…

Vedtatt plan Kommunestyret i Os vedtok områdereguleringsplan for Landboden 16. juni 2015. Planen er utarbeidd av Ard arealplan as i samarbeid med A/STAB as og b+b arkitekter as, for Os kommune og Bøe og Lepsøy Utbygging as. Planen har til hensikt å utvikle Os sentrum som ein styrka handelsstad med å leggje til rette for fleire…

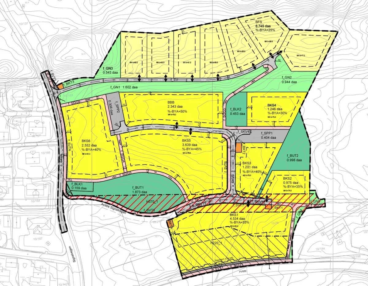
Vedtatt plan Austre Strenghaugen gnr. 10, bnr. 224 m.fl. – Møvika (planid 20130008) vart godkjent i Fjell kommunestyre 18. juni 2015. Ard arealplan har utarbeidd reguleringsplanen for Faktum Investering AS, og føremålet har vore å auke utnyttinga i området i høve til tidlegare plan, og å endre barnehageføremål til bustadføremål. Reguleringsplanen legg til rette for…