Straume Mesterbygg as

Vi har ein rekke poster om tema, klikke deg inn å sjå!

Fra øst_01 Luren

Luren

Reguleringsplanen for Luren vart vedteken i Fjell kommunestyre  20. juni 2019. 

Reguleringsplanen for Luren vart vedteken i Fjell kommunestyre  20. juni 2019. 

Eidet

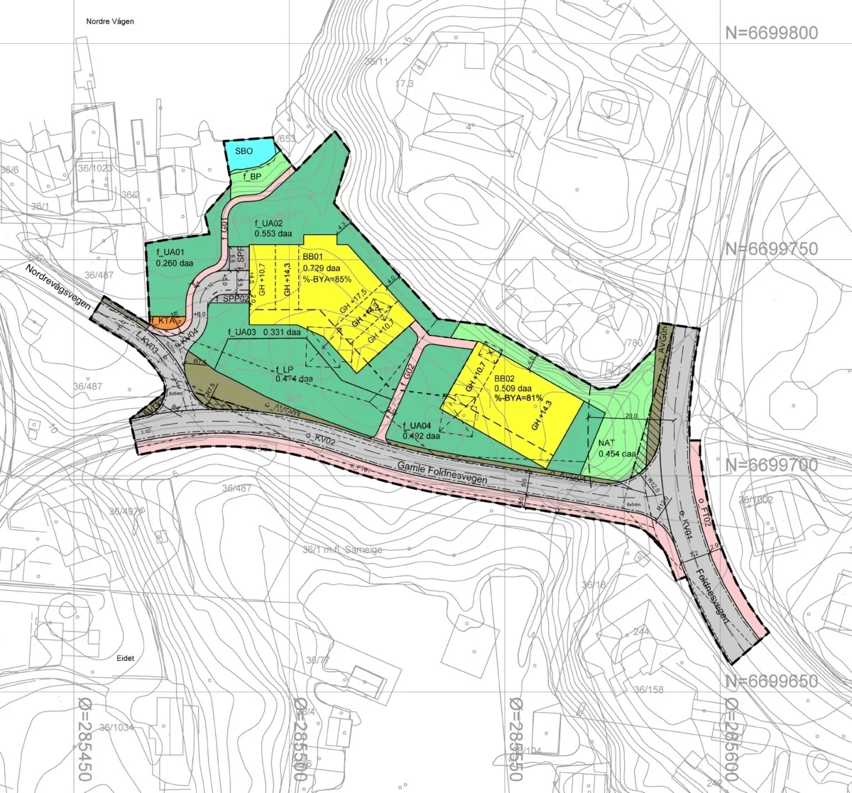
Detaljreguleringsplan for Eidet, gnr. 36, bnr. 11 m.fl. Foldnes vart samrøystes vedteke i Fjell kommunestyre 26.05.2016.

Detaljreguleringsplan for Eidet, gnr. 36, bnr. 11 m.fl. Foldnes vart samrøystes vedteke i Fjell kommunestyre 26.05.2016.

Bakkane

I medhald av plan og bygningslova (pbl) § 12-8 vert det med dette varsla at det skal setjast i gong…

I medhald av plan og bygningslova (pbl) § 12-8 vert det med dette varsla at det skal setjast i gong detaljregulering for Bakkane, gnr. 35, […]

Eidet, Foldnes

Detaljreguleringsplan for Eidet, gnr. 36, bnr. 11 m.fl. Foldnes vart samrøystes vedteke i Fjell kommunestyre 26.05.2016.

Detaljreguleringsplan for Eidet, gnr. 36, bnr. 11 m.fl. Foldnes vart samrøystes vedteke i Fjell kommunestyre 26.05.2016.

Luren, Foldnes

I medhald av plan og bygningslova (pbl) § 12-8 vert det med dette varsla at det skal setjast i gong…

I medhald av plan og bygningslova (pbl) § 12-8 vert det med dette varsla at det skal setjast i gong detaljregulering for Luren, gnr. 36, […]